产品
今年会电竞焊接/搬运专家
始于焊接,不止于焊接
始于焊接,不止于焊接
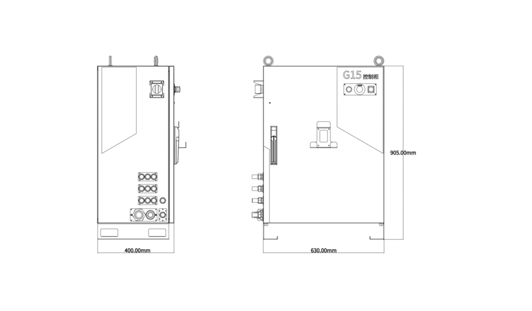
采用分割设计
分为电源室和控制室。电源室主要集中发热器件,采用多组风扇+风道设计,保障发热器件良好散热。控制室与电源室隔离,避免粉尘,油污进入控制室,保障控制室清洁,避免制室内器件受到粉尘、油污影响导致工作异常。
配置独立于控制系统的安全急停板,采用进口强制型断开继电器,对外提供双回路急停,确保急停的可靠性。
自动外部上电功能
确保操作人员能够在视线转移或远离机器人时操作机器人,从而保障操作人员人身安全。
节能模式
有效减少待机能源消耗。同时避免在待机状态下人员误入机器人区域带来伤害。
采用三相380V电源直接供电,省了变压器,节约了成本
内装三相滤波器,有效隔离外部干扰和防止内部干扰输出
新增柜门USB接口,不开柜门也能导入导出程序。
新增柜门检测功能,不关门不能上电,避免未关闭柜门粉尘进入对控制系统的影响。
内置电抗器,避免电网电涌对控制系统的冲击;
内置UPS电源,避免急停和断电对机器人本体减速机的冲击;
输出功率大,能够带动50-220KG的负载。

